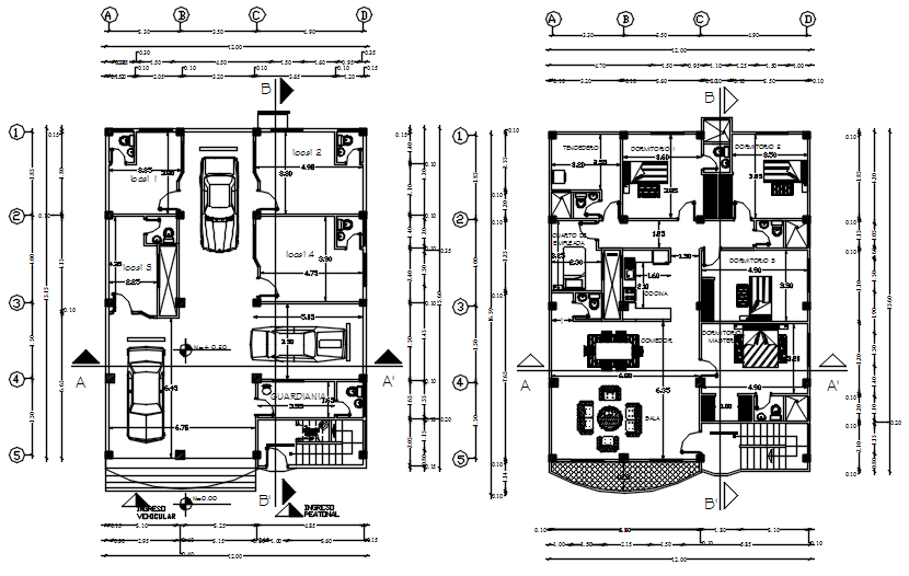
Plan of residential house 12.00mtr x 15.60mtr with detail dimension in dwg file
Description
Plan of residential house 12.00mtr x 15.60mtr with detail dimension in dwg file which provides detail of hall, bedroom, kitchen with dining area, bathroom, toilet, etc it also gives detail of parking plan.

Uploaded by:
Eiz
Luna

