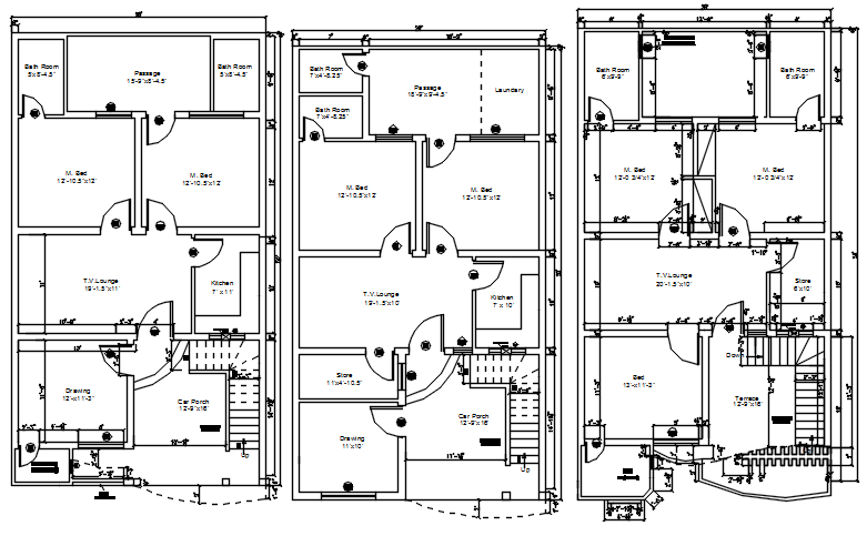
Floor plan of house 28' x 50' with detail dimension in dwg file
Description
Floor plan of house 28' x 50' with detail dimension in dwg file which provides detail of drawing room, bedroom, kitchen with dining area, lounge, bathroom, toilet, storeroom, porch, etc.

Uploaded by:
Eiz
Luna

