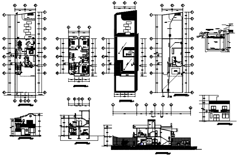
Drawing of house plan 7.50mtr x 28.00mtr with detail dimension in AutoCAD
Description
Drawing of house plan 7.50mtr x 28.00mtr with detail dimension in AutoCAD which includes detail of drawing room, bedroom, kitchen, dining room, bathroom, toilet, etc it also gives detail of elevation and section.

Uploaded by:
Eiz
Luna

