2 storey house with elevation and section in dwg file
Description
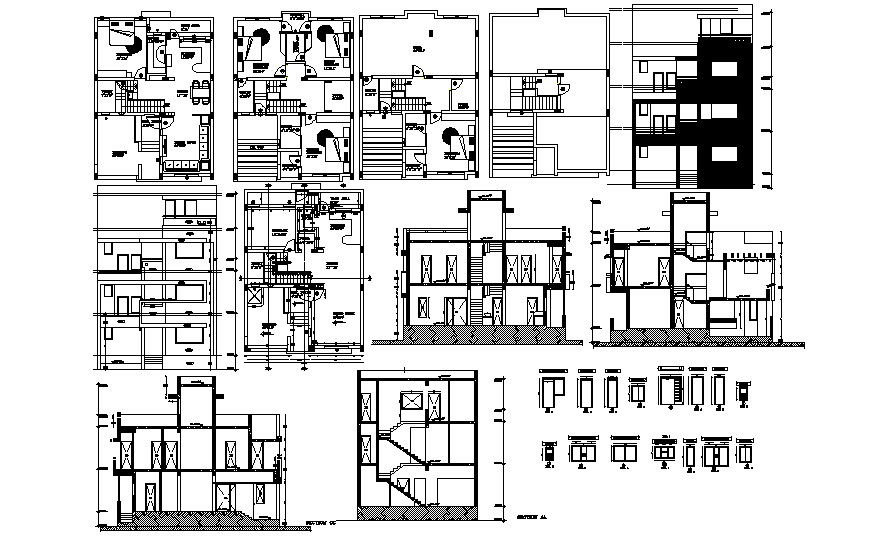
2 storey house with elevation and section in dwg file which provides detail of front elevation, detail of different section, detail of drawing room, bedroom, kitchen, dining room, bathroom, toilet, etc it also gives detail of floor level.

Uploaded by:
Eiz
Luna

