Plan of house design with furniture details in dwg file
Description
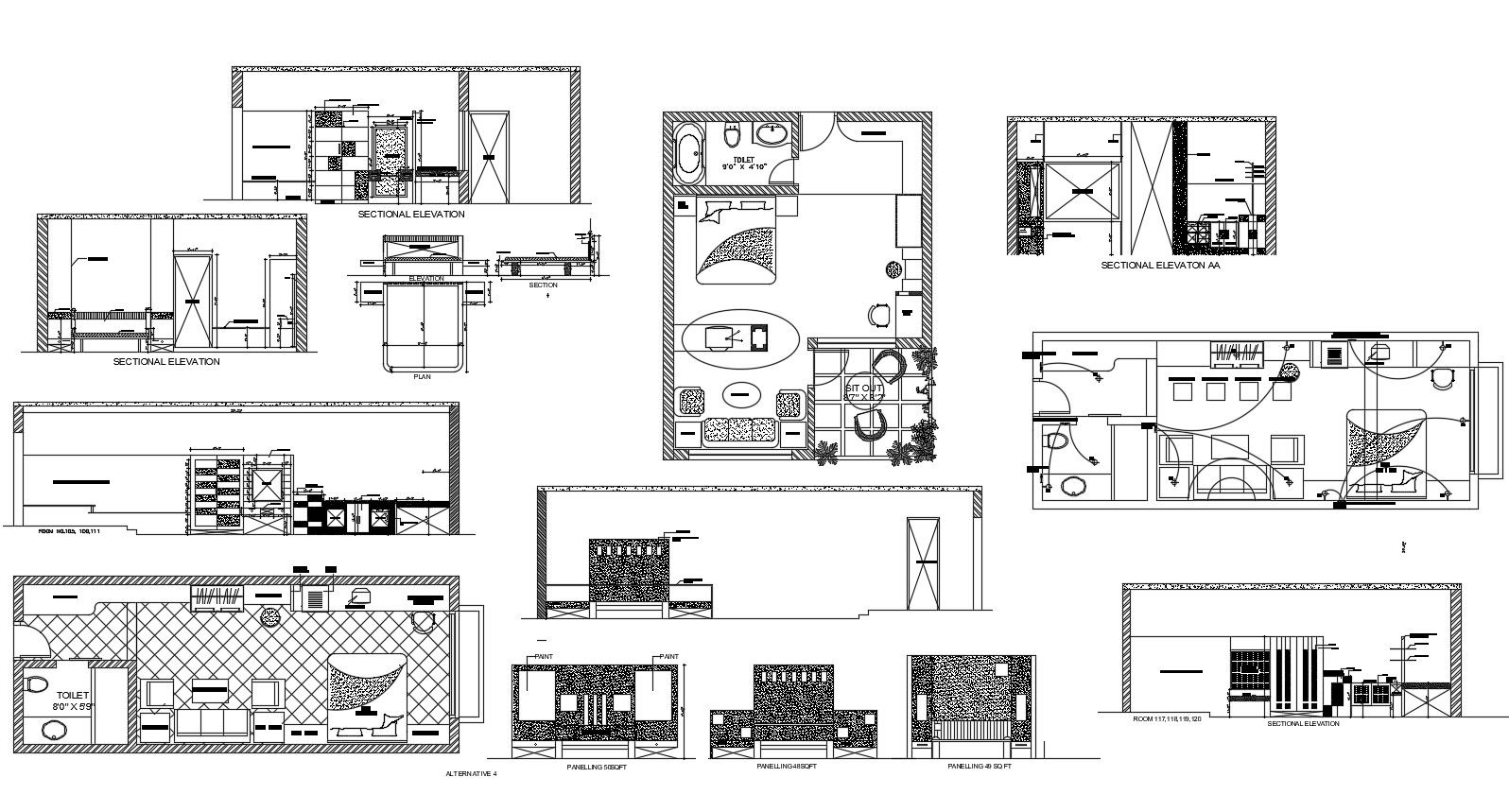
Plan of house design with furniture details in dwg file which provide detail of Hall, bedroom, kitchen, dining area, bathroom, toilet, etc it also gives detail of sectional elevation.

Uploaded by:
Eiz
Luna

