Office layout in AutoCAD
Description
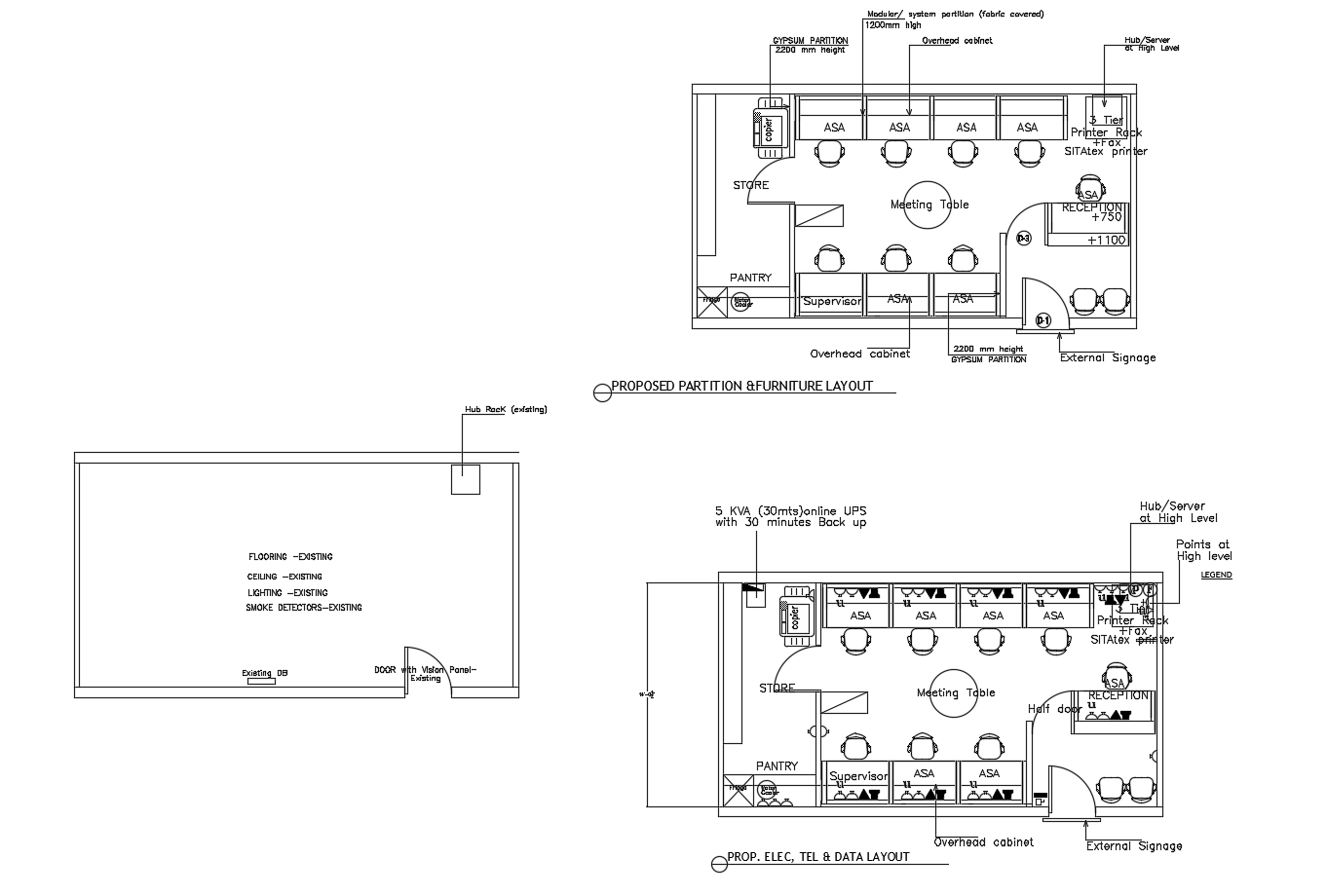
Office layout in AutoCAD it includes site plan,furniture layout,partition layout it also includes workstation,cabin,toilet,meeting room,etc
File Type:
DWG
File Size:
173 KB
Category::
Interior Design
Sub Category::
Corporate Office Interior
type:
Gold
Uploaded by:
K.H.J
Jani

