Multipurpose building with detail dimension in dwg file
Description
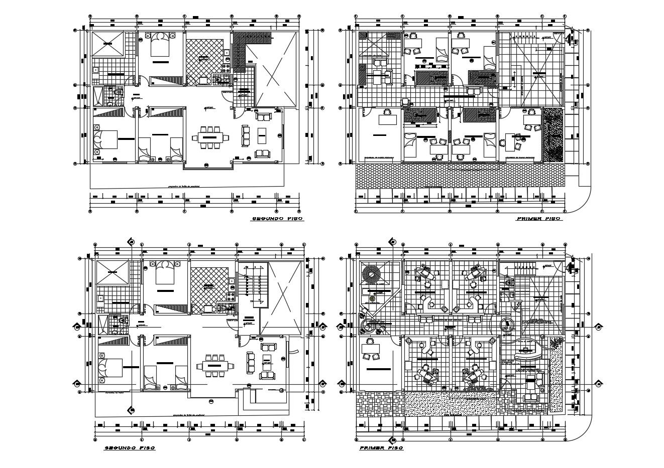
Multipurpose building with detail dimension in dwg file which provides detail of hall, bedroom, kitchen with dining area, bathroom, toilet, detail of office area, detail of clinic, etc.

Uploaded by:
Eiz
Luna

