Layout plan of house plan with detail dimension in dwg file
Description
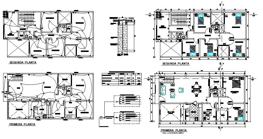
Layout plan of house plan with detail dimension in dwg file which provides detail of hall, bedroom, kitchen, dining area, bathroom, toilet, etc it also gives detail of different floor.

Uploaded by:
Eiz
Luna

