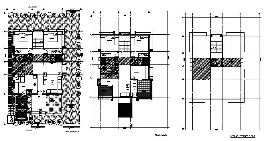
Plan of 3 storey house with section and elevation in autocad
Description
Plan of 3 storey house with section and elevation in AutoCAD which provides detail of different floor, detail dimension of the hall, bedroom, kitchen, dining room, bathroom, toilet, etc it also gives detail of the garden area.

Uploaded by:
Eiz
Luna

