Residential house with detail dimension in dwg file
Description
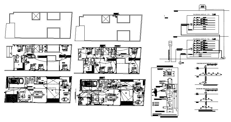
Residential house with detail dimension in dwg file which provides detail diagram of tv cable, detail diagram of telephone, detail dimension of the hall, bedroom, kitchen with dining room, WC and bathroom, etc.

Uploaded by:
Eiz
Luna

