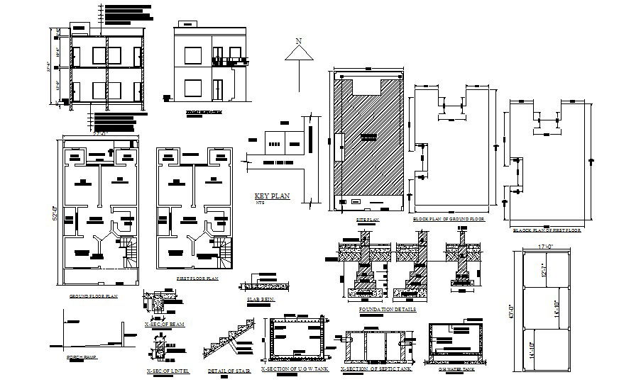
2 storey house plan with foundation details in dwg file
Description
2 storey house plan with foundation details in dwg file which provide detail of drawing room, bedroom, kitchen, dining room, bathroom, toilet, etc it also gives detail of the key plan, detail of elevation and section.

Uploaded by:
Eiz
Luna

