Residential House Plan Elevation Section In AutoCAD File
Description
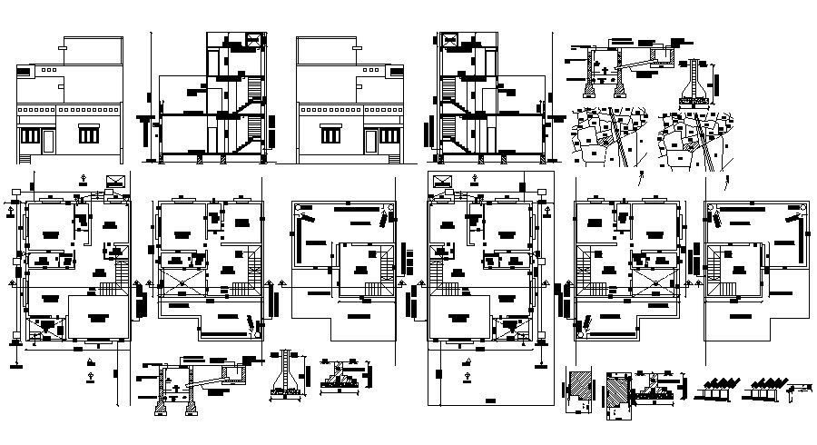
Residential House Plan Elevation Section In AutoCAD File which provides detail of foundation structure, key plan, site plan, etc it includes detail of hall, bedroom, kitchen, dining room, bathroom, toilet.

Uploaded by:
Eiz
Luna

