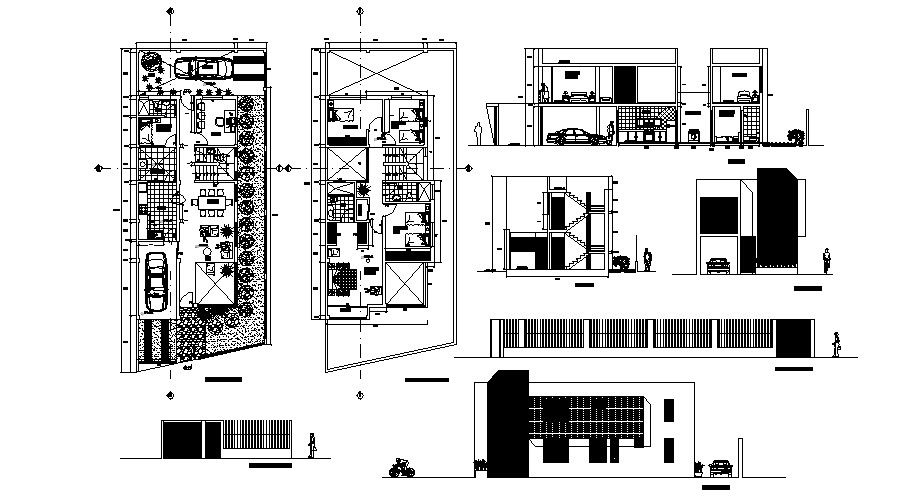
Single Family House Design Section Elevation In AutoCAD File
Description
Single Family House Design Section Elevation In AutoCAD File which provides detail of front elevation, back elevation, different section, detail dimension of the hall, bedroom, kitchen, dining room, bathroom, toilet, car parking.

Uploaded by:
Eiz
Luna

