Home Electrical Layout CAD Drawings

Home Electrical Layout CAD Drawings
Profile

Uploaded by:

Eiz

Luna

Description
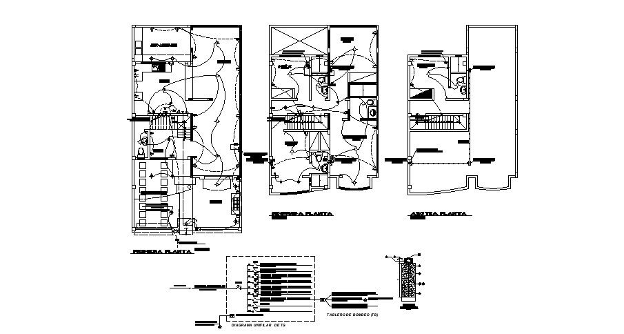
Home Electrical Layout CAD Drawings which provides detail of electric layout, detail dimension of the hall, bedroom, kitchen, dining area, bathroom, toilet, etc it also gives detail of unifilar diagram.
Profile

Uploaded by:

Eiz

Luna

find Latest

Related Files

WhatsApp Chat