Residential house design with detail dimension in AutoCAD file
Description
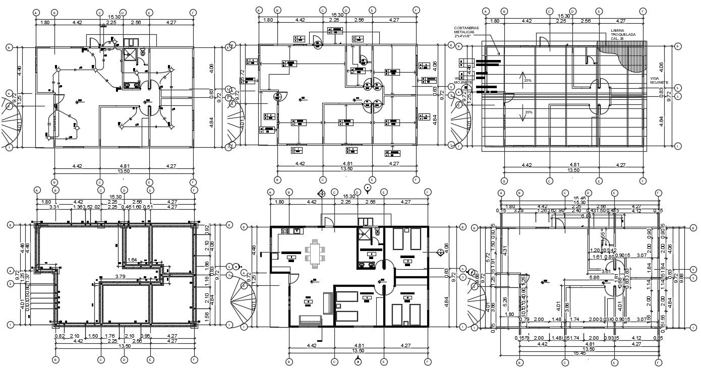
Residential house design with detail dimension in AutoCAD file which provides detail of drawing room, bedroom, kitchen, dining room, bathroom, toilet, etc it also gives detail of terrace plan.

Uploaded by:
Eiz
Luna

