Septic tank plan in DWG file
Description
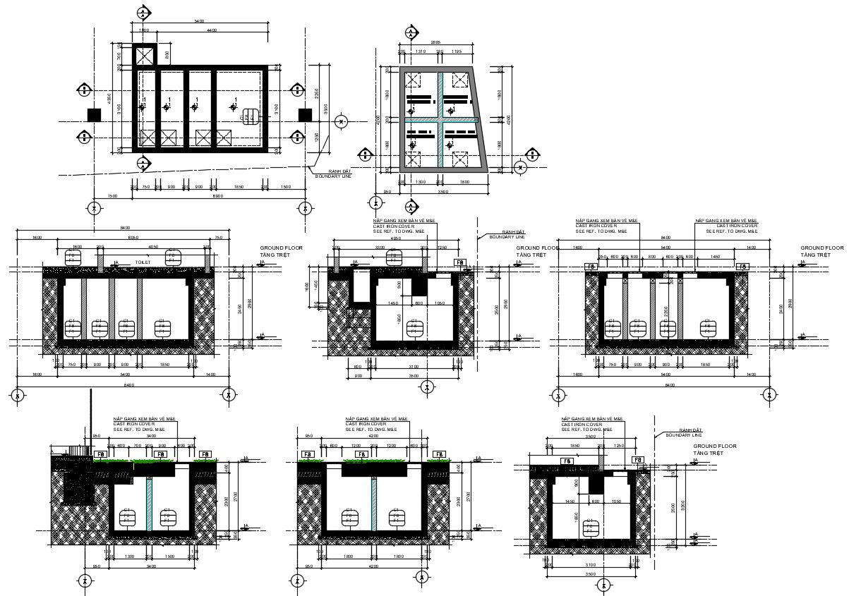
Septic tank plan in DWG file which provides detail of different section drawing of a septic tank with dimension, detail of oil separator plan with detail dimension and section drawing, etc.

Uploaded by:
Eiz
Luna

