architecture villa layout plan with elevation design
Description
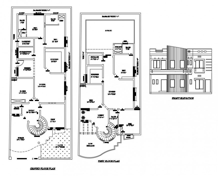
2d cad drawing architecture villa layout plan of the ground floor and first floor includes bedrooms, storeroom, living room, drawing room, lobby, kitchen, laundry area, low terrace, landscaping design along with all description detail and measurement detail, 2 story building front elevation design of villa project, download free autocad file and collect the idea for help to cad presentation or good source.
Uploaded by:
Eiz
Luna

