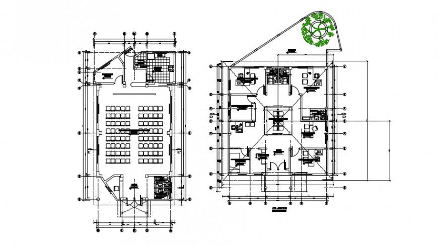
2 d cad drawing of senior citizen auditorium plan auto cad software

2 d cad drawing of senior citizen auditorium plan auto cad software
Profile

Uploaded by:

Eiz

Luna

Description

2d cad drawing of senior citizen auditorium plan autocad software detailed with senior citizen auditorium seen in drawing with all sections given in drawing with common toilet area and office station for work area and line indicated in drawing with detailed dimension.

 

Profile

Uploaded by:

Eiz

Luna

find Latest

Related Files

WhatsApp Chat