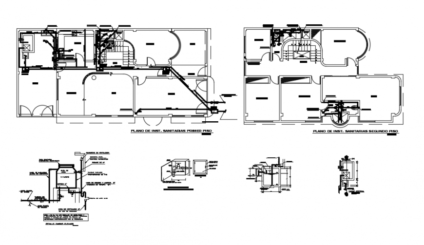
Water distribution drawings details in building AutoCAD file
Description
Water distribution drawings details in building AutoCAD file that shows pipe blocks details along with water tank details and valve tap details and other details also included in drawings.
Uploaded by:
Eiz
Luna

