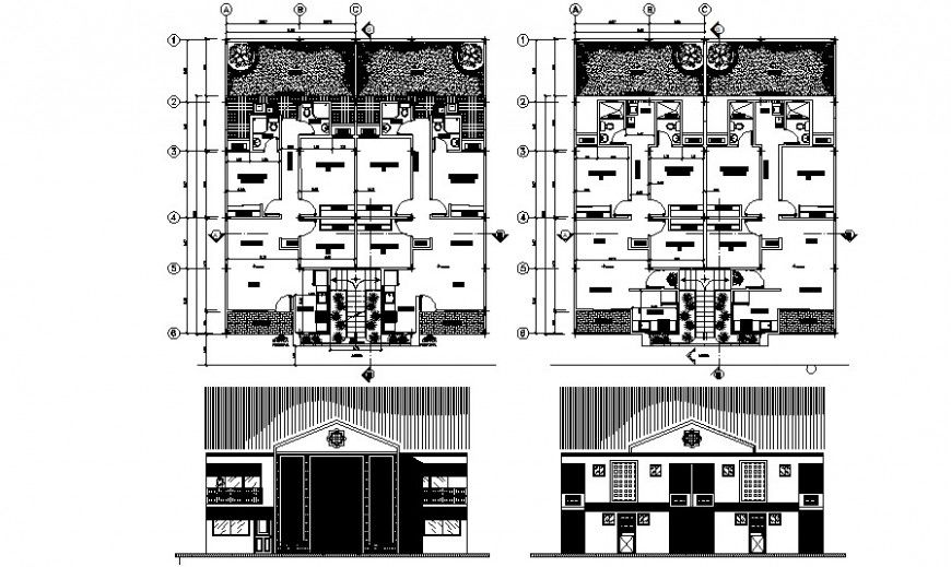
2d cad drawing of tetra familiar houses auto cad software
Description
2d cad drawing of tetra familiar hoiues autocad softare detailed with all basic elevation given with floor detail with living room and combined dinning area with crockery unit and common toilet area and kitvcen layout and other detailed with bedroom floor plan.
Uploaded by:
Eiz
Luna

