2d cad drawing of elevation hotel floor plan auto cad software
Description
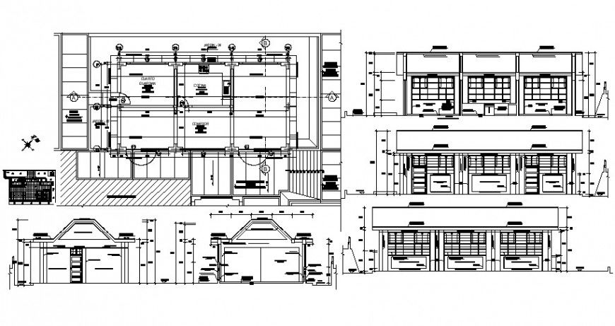
2d cad drawing of elevation hotel floor plan autocad software detailed with all common area alloted shown with a respective plan with all dining area with lounge area and other detailed with windows and doors block and dj music room with dimension and other description.
Uploaded by:
Eiz
Luna

