2d cad drawing of son villa architectural auto cad software
Description
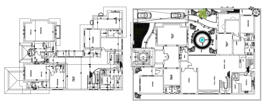
2d cad drawing of son villa artitectural autocad software detailed with living room and seprate family sitting wioth dining area and open kitchen an d common toilet area and bedroom with seprate dressing unit and toilet area.
Uploaded by:
Eiz
Luna

