2d cad drawing of room uses elevation auto cad software
Description
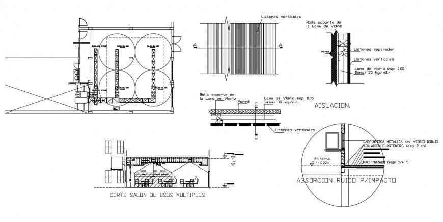
2d cad drawing of room uses elevation autocad software detailed with basic construction with alligned lines and been shown with constructed basis tht details with room construction and system construction.
Uploaded by:
Eiz
Luna

