2d cad drawing of house exterior elevation autocad software
Description
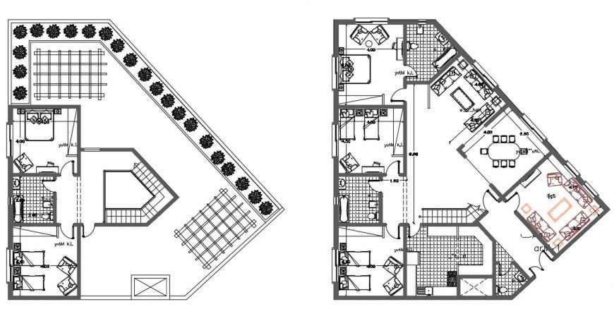
2d cad drawing of house exterior elevation autocad software detaied wit three bedroom plan and dining area and living room and bedroom elevation with sofa rarea and attached toilet area and single bed bedroom and garden flower pot area seen in side ways of house exterior
Uploaded by:
Eiz
Luna

