2d residence house floor detail cad file
Description
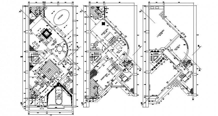
2d cad drawing of residence floor detail includes main entry house door, drawing room, and living room, family hall details kitchen and dining area with entertainment department like swimming pool, drinking bar, also have compound wall and car parking area, description and dimesnion detail cad file, download in free autocad file and use for cad presentation.
Uploaded by:
Eiz
Luna

