residence floor layout plan with construction detail cad file
Description
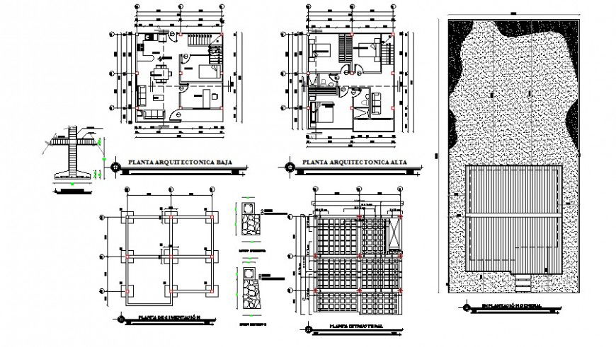
2d cad drawing of residence floor layout ground floor plan and first floor plan along with all funriture detailing, structure detailing, foundation and beam layout plan, also has mension roof plan with compound wall and landscaping design, download in free autocad file and use for cad presentation.
Uploaded by:
Eiz
Luna

