2d drawings section of residential apartment building dwg file
Description
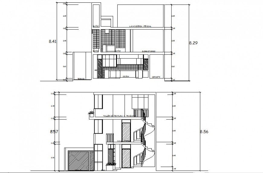
2d drawings section of residential apartment building dwg file that shows apartment different sections details along with floor level details. Staircase details door window blocks details also included in drawings.
Uploaded by:
Eiz
Luna

