One story house front and side section cad drawing details dwg file
Description
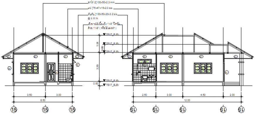
One story house front and side section cad drawing details that includes doors and windows view and staircase view details, balcony view with wall design, dimensions and roof or terrace view and much more of house details.
Uploaded by:
Eiz
Luna

