Old floor framing plan structure details of house dwg file
Description
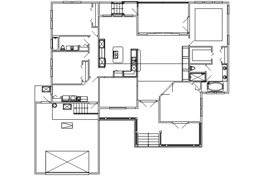
Old floor framing plan structure details of house that includes a detailed view of wood posts with Grider pre-engineering, steel pipe column and play joints, existing floor joints, knee wall details provided. Steel pipe column with beam schedule details, dimensions details, measures and much more of house details.
Uploaded by:
Eiz
Luna

