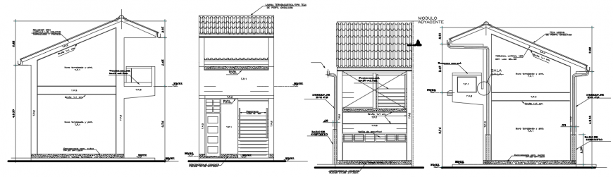
2 d cad drawing of home elevation 1 auto cad software
Description
2d cad drawing of home elevation 1 autocad software that details about the front elevation with roof and room straight windows and concrete base seen in lines and brick roof color panel.
Uploaded by:
Eiz
Luna

