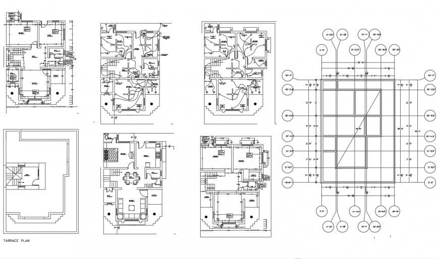
House layout plan, framing plan and electrical layout plan cad drawing details dwg file
Description
House layout plan, framing plan and electrical layout plan cad drawing details that includes a detailed view of main entry house door, drawing room and living room with family hall details kitchen and dining area, indoor staircases and laundry area and balcony with computation and schedule of loads with general notes and specifications, panel board details, riser diagram and much more of house details.
Uploaded by:
Eiz
Luna

