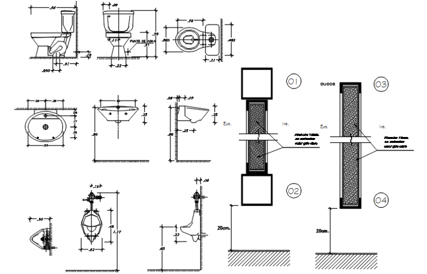
Toilet sheet installation and plumbing details for public toilet dwg file
Description
Toilet sheet installation and plumbing details for public toilet that includes a detailed view of controller-to-valve details & wiring diagram, pipe and wire trenching, main isolation valve assembly control valve assembly with air / vacuum relief valve, drain/flush valve and much more of plumbing details.
Uploaded by:
Eiz
Luna

