2 d cad drawing of house roof elevation layout Auto Cad software
Description
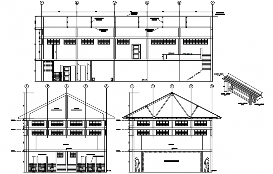
2d cad drawing of house roof elevation layout autocad software detailed with house roof with chimney gap out and small level ventlation window and doors been seen in front vierw and parking area nad gap for walkable area towards garden area and people walking throuh streets
Uploaded by:
Eiz
Luna

