Storage Tank Design
Description
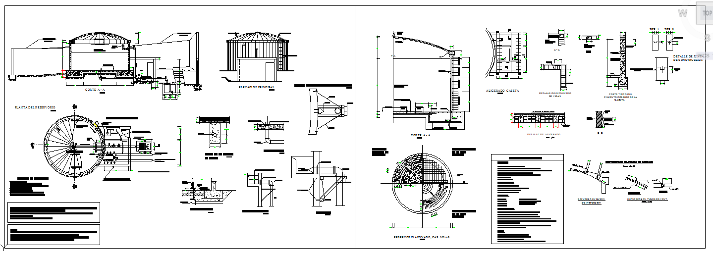
Storage tanks are containers that hold liquids, compressed gases (gas tank) or mediums used for the short- or long-term storage of heat or cold. Storage Tank Design Detail.
File Type:
DWG
File Size:
1.4 MB
Category::
Structure
Sub Category::
Section Plan CAD Blocks & DWG Drawing Models
type:
Free

Uploaded by:
Jafania
Waxy

