2 d cad drawing of some hand bhai house plan Auto Cad software
Description
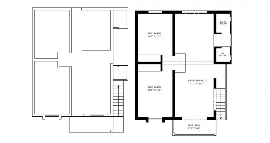
2d cad drawing of somchand bhai house plan autocad software detailed with two bedroom with toilet area and wash closet area seprately with open terrace and balcony area and staircase area been given in the drawing of house plan.
Uploaded by:
Eiz
Luna

