2 d cad drawing of sub elevation auto cad software
Description
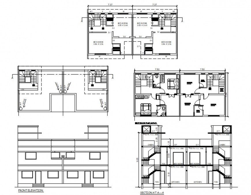
2d cad drawing of sub elevation AutoCAD software detailed with four bedrooms and staircase around and toilet room and the kitchen area and bedroom with other flats been shown in the drawing.
Uploaded by:
Eiz
Luna

