Two floor distribution plan with furniture cad drawing details dwg file
Description
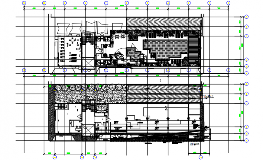
Two floor distribution plan with furniture cad drawing details that includes main entry house door, drawing room and living room, family hall details kitchen and dining area with entertainment department like swimming pool, auditorium hall details, spa and gym center and cafeteria and indoor staircases also provided and laundry area and balcony, details and bedroom or master bedroom, toilets and bathroom with indoor doors, furniture details and much more of clubhouse project.
Uploaded by:
Eiz
Luna

