Drawings details of house 2d view floor layout plan dwg file
Description
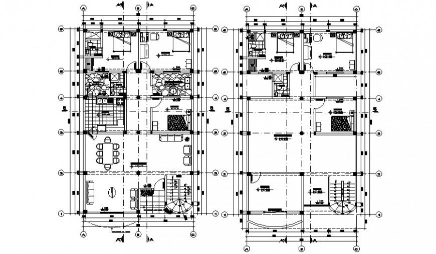
Drawings details of house 2d view floor layout plan dwg file that shows work plan of the house along with furniture details in house. Dimension hidden line details with section line details along with room details of drawings room bedroom kitchen and dining area with sanitary toilet and bathroom detials also included in drawings.
Uploaded by:
Eiz
Luna

