Drawings details of housing living apartment in autocad software file
Description
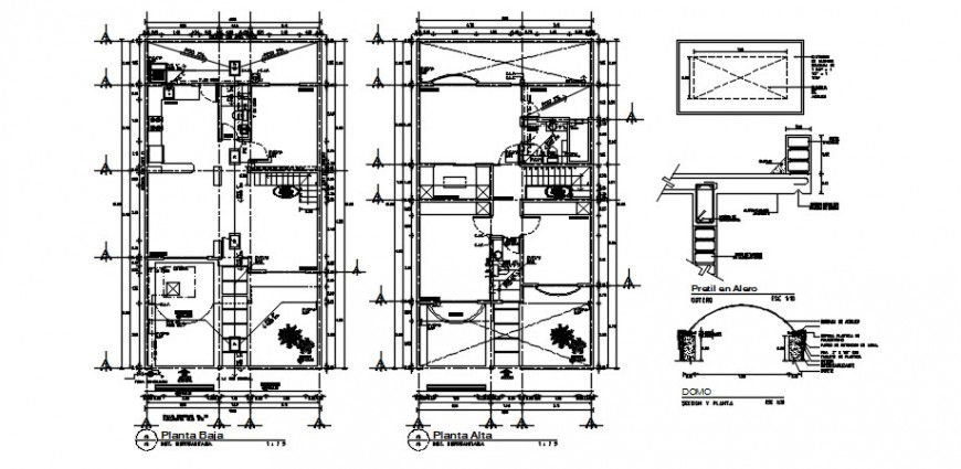
Drawings details of housing living apartment in autocad software file that shows the work plan of the house along with floor level details and furniture layout detail in the house. Room details include details of drawing room bedroom kitchen and dining area along with sanitary toilet and bathroom area details also included in drawings.
Uploaded by:
Eiz
Luna

