2 d cad drawing of house elevation floor plan auto cad software
Description
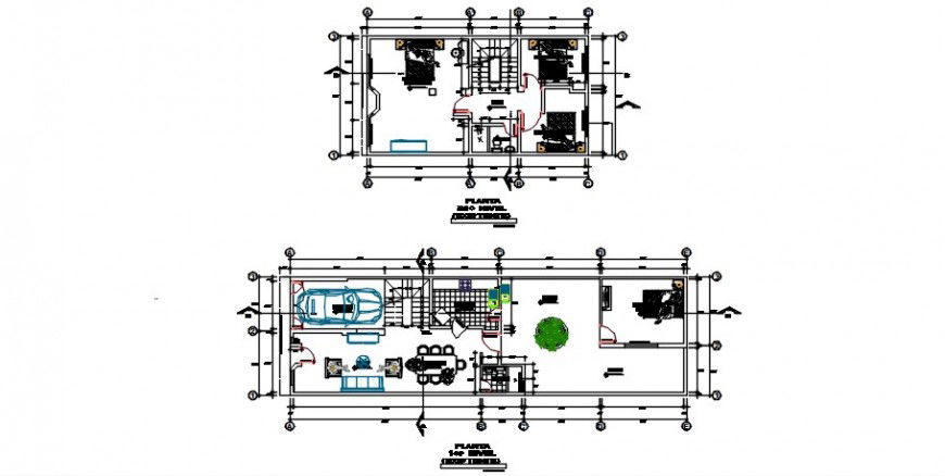
2d cad drawing of house elevation floor plan autocad software detailed with living area and dining area and car parking area and drawing room and bedroom plan with mentioned dimension and description for floor plan.
Uploaded by:
Eiz
Luna

