2d view floor plan of residential housing units layout file AutoCAD file
Description
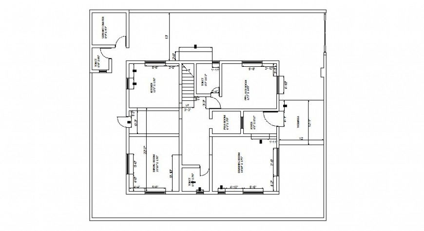
2d view floor plan of residential housing units layout file AutoCAD file that shows work plan of the house along with room interior dimension and room includes details of bedroom aea drawings room area with kitchen and dining area details and staircase details. Door window blocks details and staircase sanitary toilet area details.
Uploaded by:
Eiz
Luna

