House floor plan and different axis elevation in AutoCAD
Description
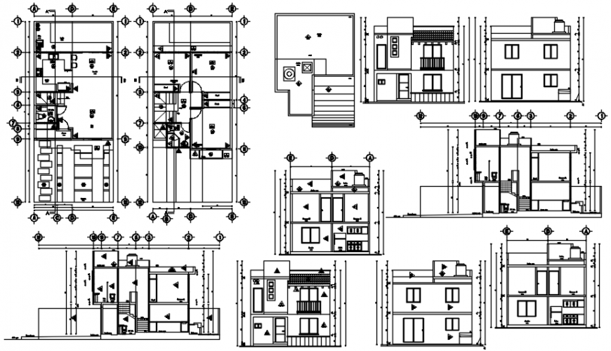
House floor plan and different axis elevation in AutoCAD plan include detail of wall area distribution with flooring area and view of bedroom kitchen washing area and drawing room ,elevation include wall floor and floor level in view.

Uploaded by:
Eiz
Luna

