Kitchen with Bath room design

Kitchen with Bath room design
Profile

Uploaded by:

Eiz

Luna

Description
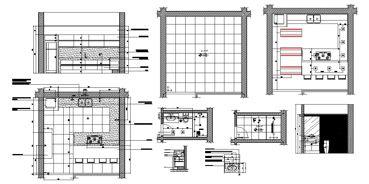
Some bathrooms contain a medicine cabinet for personal hygiene products and medicines and drawers or shelves for storing towels and other items.Kitchen with Bath room design Detail, Kitchen with Bath room design Download file. Modular Kitchen design include chimney, refrigerator, stove and cabinet in autocad format.
Profile

Uploaded by:

Eiz

Luna

find Latest

Related Files

WhatsApp Chat