Housing apartment drawings layout plan elevation and sectional details in dwg format file
Description
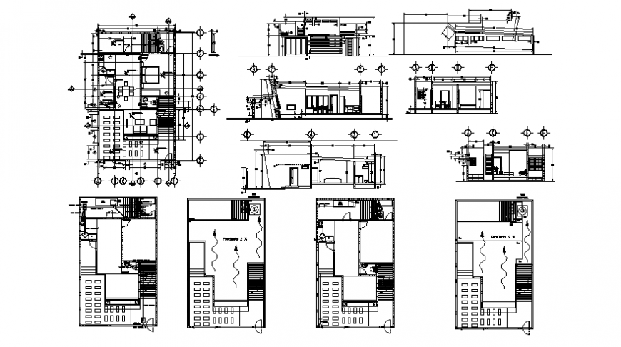
Housing apartment drawings layout plan elevation and sectional details in dwg format file that shows work plan of the house along with furniture layout details in house and roo details include details of bedroom area kitchen and dining area drawings room with sanitary toilet and bathroom at=rea details. House different sides of elevation and sectional details are also shown in drawings.
Uploaded by:
Eiz
Luna

