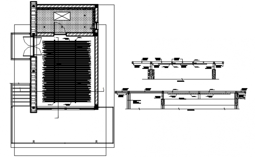
Ceiling deign plan and section
Description
Autocad drawing of ceiling design layout plan and detailed section showing floor plan with area specification and dimensions, ceiling plan with material description and design, sections showing all the important joineries along with each and every part description, etc.
Uploaded by:
Eiz
Luna

