Construction plan drawings of house 2d view layout AutoCAD file

Construction plan drawings of house 2d view layout AutoCAD file
Profile

Uploaded by:

Eiz

Luna

Description

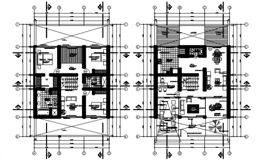
Construction plan drawings of house 2d view layout AutoCAD file that includes work plan drawings details of house with furniture blocks detail and room details of kitchen drawings room details bedroom and sanitary toilet and bathroom details are aslo shown in drawings. Door window blocks details nd other details also shown in drawings.  

Profile

Uploaded by:

Eiz

Luna

find Latest

Related Files

WhatsApp Chat