Mechanical blocks drawings 2d view electrical units dwg autocad file
Description
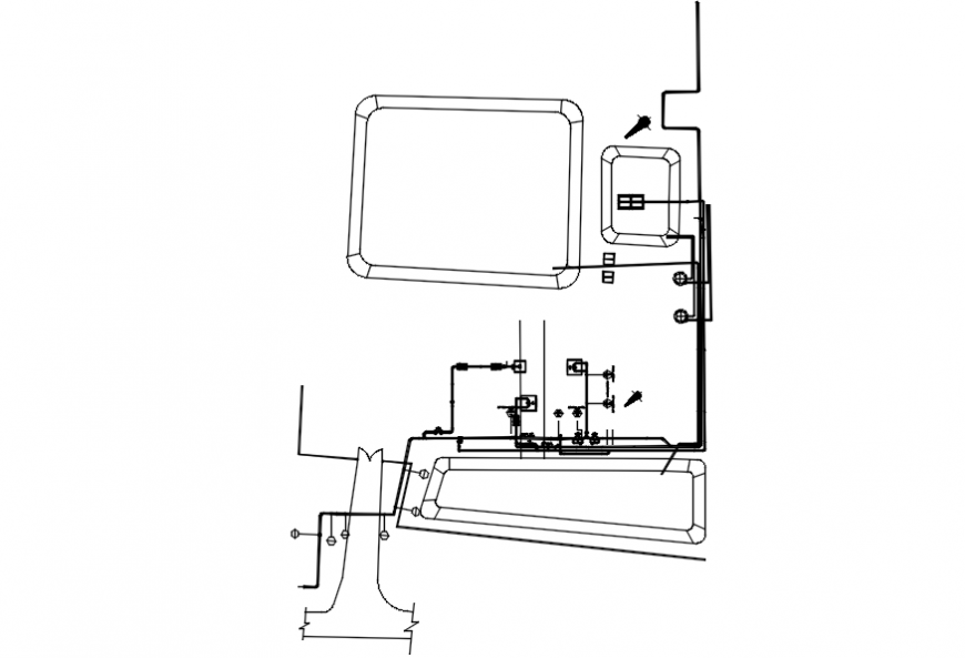
Mechanical blocks drawings 2d view electrical units dwg autocad file that shows welded bolted joints and connections details and a top elevation of mechanical blocks shown in drawings.
File Type:
DWG
File Size:
256 KB
Category::
Mechanical and Machinery
Sub Category::
Mechanical Engineering
type:
Gold
Uploaded by:
Eiz
Luna

