2d cad drawing of storeroom design Autocad software
Description
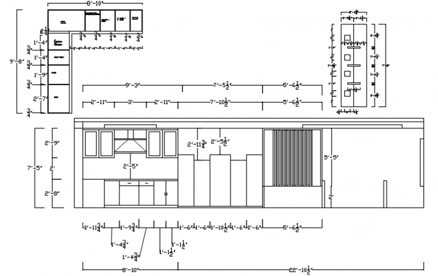
2d cad drawing of store room design autocad software detiling of store room design been shown with dimensions. L shape cabinet showing the inner shelf cabinet of kitchen areas with front elevation of kitchen with upper and lower cabinet.
File Type:
3d max
File Size:
641 KB
Category::
Dwg Cad Blocks
Sub Category::
Windows And Doors Dwg Blocks
type:
Gold
Uploaded by:
Eiz
Luna

