Drawings of plumbing units block elevation dwg autocad file
Description
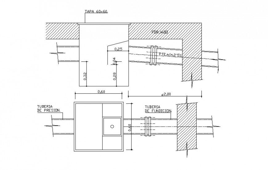
Drawings of plumbing units block elevation dwg autocad file that shows plumbing pipe blocks details with valve and dimension details. Naming texts details and water level details also shown in drawings.
File Type:
DWG
File Size:
15 KB
Category::
Dwg Cad Blocks
Sub Category::
Autocad Plumbing Fixture Blocks
type:
Gold
Uploaded by:
Eiz
Luna

