Residential house layout plan and electric installation drawing details dwg file
Description
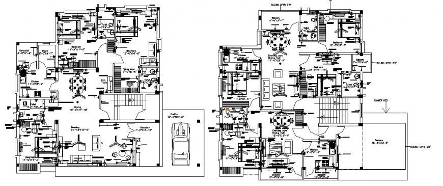
Residential house layout plan and electric installation drawing details that includes a detailed view of free download file of power layout details and lighting layout details, computation and schedule of loads with general notes and specifications with family hall details kitchen and dining area, indoor staircases and laundry area and balcony, details and bedroom or master bedroom, toilets and bathroom with indoor doors, furniture details and much more of house project.
Uploaded by:
Eiz
Luna

